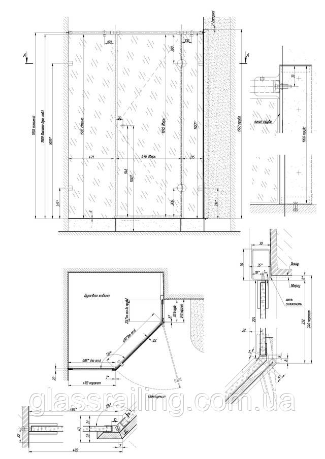
Душова Тип 813 типові монтажні схеми

Скляна душова перегородка — тип 813
Кутова скляна перегородка з відкривними дверима та глухими склами під 135 градусів.
Основні елементи:
Скло 8 мм загартоване, петлі скло-скло з фіксацією, ручка, ущільнювачі.
Типові монтажні схеми:

Замовити прорахунок такої конструкції:

Інші статті


