Стальна огорожа сходів

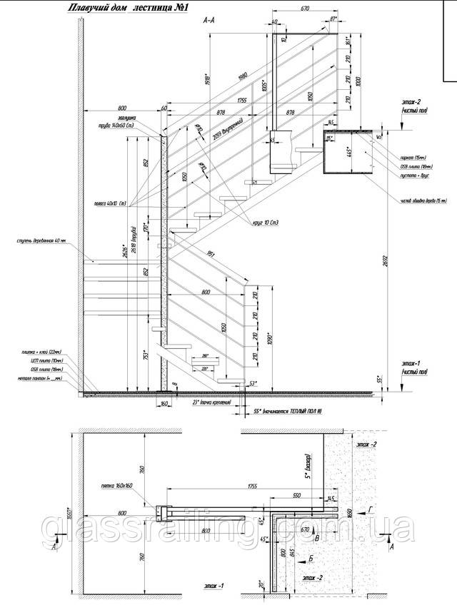
При проектуванні огорожі сходів бал запропоновано рішення, при якому огорожа не кріпилося до косоуру, при монтажі не використовувалася зварювання, огорожа було повністю розбірним, що дозволило зібрати його на об'єкті.
Дизайн огорожі для узгодження з замовником:




В ході проектування було розроблено технічне завдання для узгодження з замовником:


Огорожу в процесі роботи:




Огорожа після монтажу на об'єкті






Інші статті


